COPA

Descrição

Lançamento

Um novo ícone em Copacabana

O COPA surge no coração do bairro mais famoso do Brasil, a poucos passos da praia, entre as ruas Santa Clara e Constante Ramos – POSTO 4.
Studios e Double Studios com plantas inteligentes, lazer no rooftop e conveniências fazem do empreendimento um endereço para morar ou investir.

  • Studios e Double Studios de 31 a 69 m²
  • Rooftop exclusivo, com: piscina com deck molhado, solarium, sauna, fitness e lounge stay, lounge zen, gourmet, colounge
  • Conveniências: coworking, sala de reunião, minimarket, lavanderia, bicicletário, maleiro, espaço delivery e Beach & Tools 4 You
  • Tecnologia e segurança: CFTV, pulmão de acesso de pedestre, fechaduras eletrônicas nos apartamentos, tomadas USB, coleta seletiva, medição individualizada e infraestrutura para ponto de carregamento elétrico de bike.

Áreas privativas

  • Studios: 31,07 m² a 39,61 m²
  • Double Studios: 54,70 m² a 69,79 m²
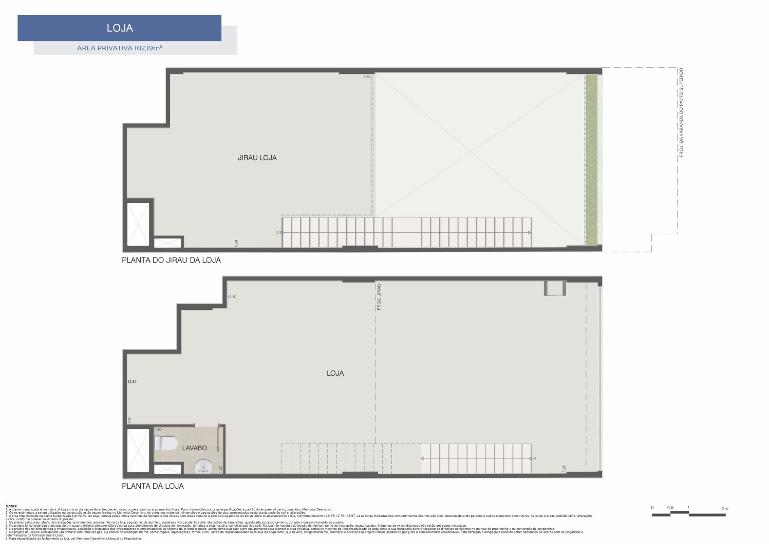
  • Loja com jirau: 102,19 m²

PRPA: Flavio Bassan – CAU: A297232
PREO: Marcos Saceanu – CAU: 2001103365

111 All Suites - Logo
sim
  • Nome: COPA
  • Bairro: Copacabana
  • Endereço: Avenida Nossa Senhora de Copacabana, 813 - Entre as ruas Santa Clara e a Constante Ramos - Posto 4
  • Quartos e Metragem: Studios e Double Studios e 31 a 69 m²
  • Status: Lançamento
Array
...
Fachada

Imagens

Localização

    Contato


    termosLi e aceito a Política de Privacidade.

    Este site usa cookies para garantir que você obtenha a melhor experiência em nosso site.
    Política de Privacidade .